Disponible le 30 juin 2026
Maison neuve haut de gamme à louer
Superbe construction neuve avec vue sur le Mont-Orford située dans un nouveau quartier résidentiel avec grand terrain boisé sans voisin arrière.
Caractéristiques:
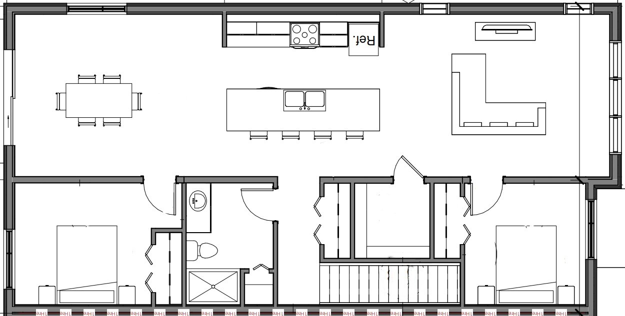
- 3 chambres
- 2 salles de bain complètes
- Salle de lavage indépendante
- Garage +/- 450 pi²
- +/- 2 000 pi² sur 2 étages
- Aires ouvertes lumineuses
- Grand terrain privé
- Balcon arrière
- Stationnement extérieur + garage
Finitions haut de gamme :
- Plafond 9’-0 au rez-de-chaussée
- Comptoirs en quartz
- Douche en céramique
- Escalier en granit
- Matériaux modernes et de qualité
